Company Profile
Yuguang Electric primarily manufactures a wide range of products, including 6kV-40.5kV indoor and outdoor high-voltage vacuum circuit breakers, complete sets of box-type substations, high-voltage vacuum load switches, pneumatic load switches, wind energy-specific combination appliances, sulfur hexafluoride circuit breakers, and more.
Application
ZW7-40.5kV type outdoor high-voltage VCB serves industries including power, metallurgy, mining, petrochemicals, telecommunications, and other supply chain systems.
Product Overview
ZW7-40.5kV type outdoor high-voltage VCB is an outdoor high-voltage switchgear with 3-phase AC 50HZ and a rated voltage of 40.5KV and below.
ZW7-40.5kV conforms to GB1984-2014 "AC High Voltage VCB", GB3309-1989 "Mechanical Test of High Voltage Switchgear at Normal Temperature"and GB/T11022-1999 "Shared Technical Requirements for High Voltage Sky Switchgear and Control Equipment Standards"and other national standards, and it can be used as a means of breaking and closing load currents, overload currents and short-circuit currents.
Characteristics
1. Adopting modularized spring-operated mechanism for greater versatility;
2. Miniaturized design, more concise and reasonable structure;
3. Reinforced bracket column structure, strong seismic resistance;
4. Adoption of large creepage distance porcelain sleeve, stronger anti-fouling ability;
Technical Parametes:
|
Technical Parameters |
Values |
|
Rated Voltage |
40.5kV |
|
Rated Current |
1250A, 1600A |
|
Rated Short-circuit Breaking Current |
25kA, 31.5kA |
|
Rated Operating Sequence |
O-0.3s-CO-180s-CO |
|
Mechanical Life |
10000 times |
|
No. |
Parameter name |
Unit |
Data |
||
|
1 |
Rated voltage |
KV |
40.5 |
||
|
2 |
Rated current |
A |
1250, 1600 |
||
|
3 |
Rated frequency |
Hz |
50 |
||
|
4 |
Rated short-circuit breaking current |
KA |
25, 31.5 |
||
|
5 |
Rated-short-circuit making current |
KA |
63, 80 |
||
|
6 |
Rated peak withstand current |
KA |
63, 80 |
||
|
7 |
Rated short-time withstand current |
KA |
25, 31.5 |
||
|
8 |
Rated short-circuit duration |
S |
4 |
||
|
9 |
Standard Operating sequence |
00.3S-C/0180S-C/O |
|||
|
10 |
Short-circuit breaking currents under conditions of heterogeneous ground faults |
KA |
21.93, 27.6 |
||
|
11 |
Rated insulating level |
1min power frequency withstand voltage |
dry run |
KV |
95 |
|
wet run |
KV |
85 |
|||
|
Lightning impulse withstand voltage(peak) |
KV |
185 |
|||
|
12 |
On-off time |
Ms |
≤100 |
||
|
13 |
Mechanical endurance |
times |
10000 |
||
|
14 |
Breaking operations of rated short circuit breaking current |
times |
20 |
||
Assemply production line


Installation site

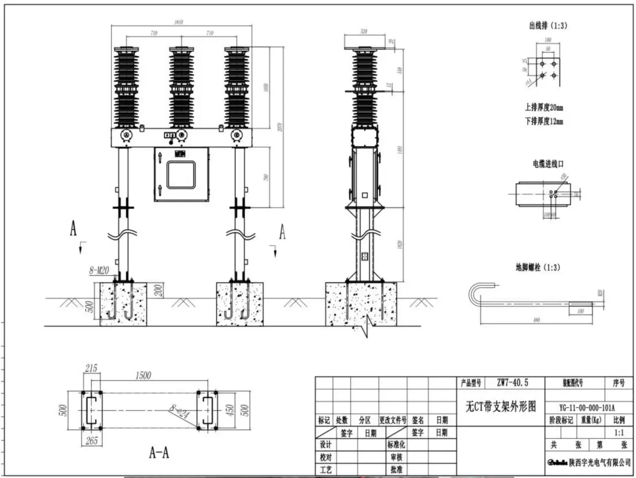
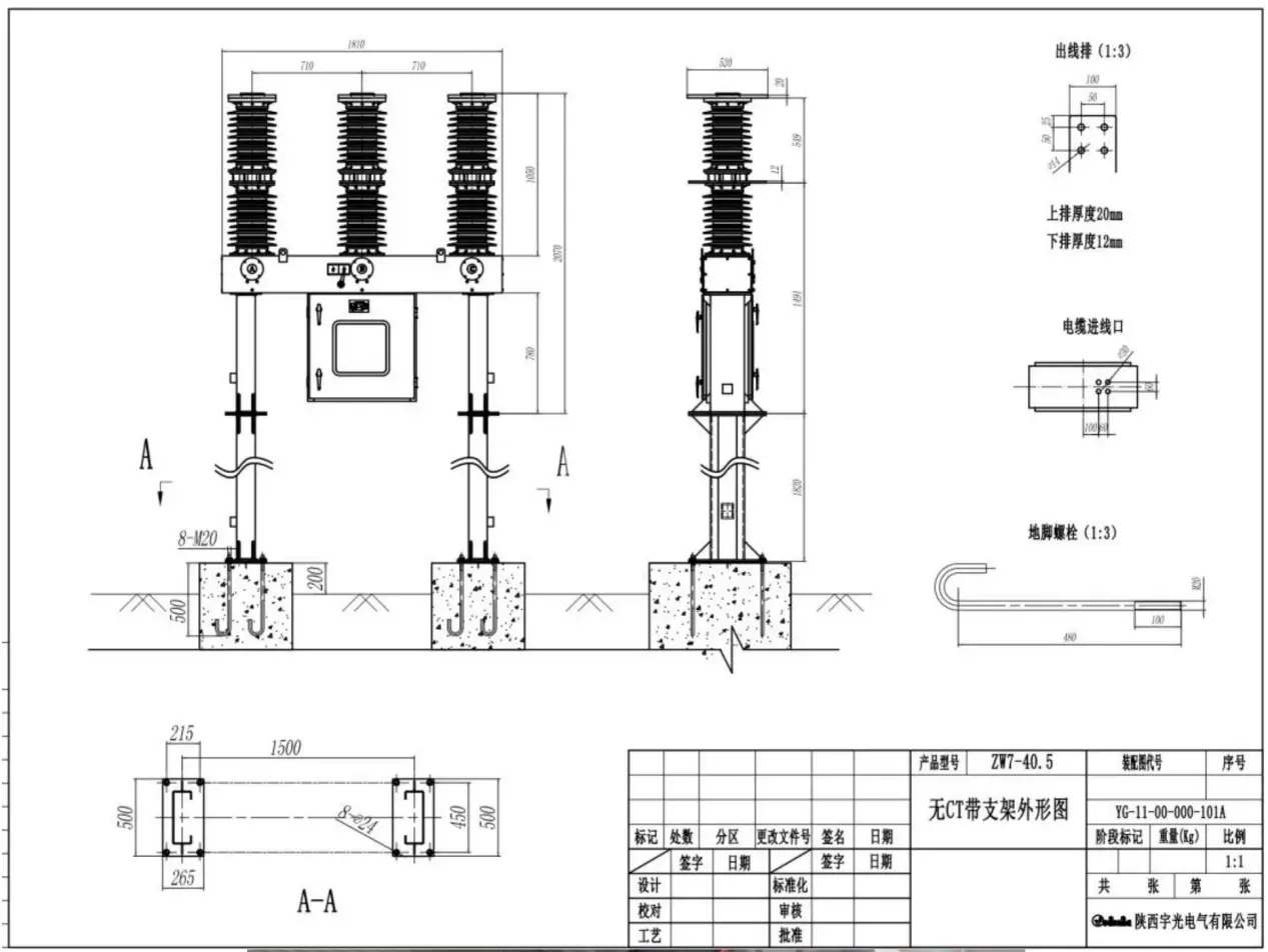
Outline Drawing

Normal Use Conditions
Ambient air temperature: Upper limit +40°C, lower limit -30°C (general area), -40°C (alpine area);
Altitude: ≤1000M (if the altitude increases, the rated insulation level increases accordingly)
Wind pressure: not exceeding 700PA (equivalent to a wind speed of 34M/S)
Seismic intensity: no more than 8 degrees
Obscurity level: Class IV
Maximum daily temperature difference: not exceeding 25°C
Advantages:
Adopting modularized spring-operated mechanism for greater versatility;
Miniaturized design, more concise and reasonable structure;
Reinforced bracket column structure, strong seismic resistance;
Adoption of large creepage distance porcelain sleeve, stronger anti-fouling ability;
OEM/ODM Services:
Shaanxi Yuguang Electric Co., Ltd.offer comprehensive OEM/ODM services to meet the diverse needs of our clients. Whether it's custom branding or tailored product specifications, we are committed to providing flexible solutions to meet your requirements.
Certifications: Our products have the following certifications:
ISO9001 Certification
21 Utility Model Patents and Design Patents
Qualification reports certified by reputable testing organizations
OEM/ODM Services: At Shaanxi Yuguang Electric Co., Ltd., we offer comprehensive OEM/ODM services to meet the diverse needs of our clients. Whether it's custom branding or tailored product specifications, we are committed to providing flexible solutions that align with your requirements.
Certifications: Our products are backed by the following certifications:
3C Certification
ISO9001 Certification
21 Utility Model Patents and Design Patents

Why Choose Us:
State-of-the-art Manufacturing Equipment: With 14 types of production equipment and 14 testing devices, we ensure precision and efficiency.
Extensive Patent Portfolio: We hold 21 utility model patents and design patents, showcasing our commitment to innovation.
Quality Assurance: Our products undergo rigorous inspection and testing, adhering to ISO9001 quality standards.
Warranty Protection: We offer a one-year warranty period, providing peace of mind to our customers.
FAQ:
Q: What is the lifespan of the ZW7-40.5 Outdoor Vacuum Circuit Breaker? A: The mechanical life of our circuit breaker is rated at 10,000 operations.
Q: Can the circuit breaker withstand harsh environmental conditions? A: Yes, our breaker is designed to operate reliably in a wide range of environmental conditions.
Q: Do you provide customization options for the circuit breaker? A: Yes, we offer OEM/ODM services to meet the specific requirements of our clients.
Q: Is the product compliant with international standards? A: Absolutely, our circuit breaker meets all relevant international standards for quality and safety.
Q: What kind of warranty do you offer? A: We provide a one-year warranty period for our products, ensuring customer satisfaction and peace of mind.
Packaging:
Wooden Box Packaging
Cardboard Box Packaging
Foam Padding Packaging
Waterproof Packaging
Customized Packaging
International Standard Packaging
Logistics:
Sea Freight
Air Freight
Land Transportation
Multimodal Transportation
Express Delivery Services
Contact Us: Ready to experience the superior performance and reliability of the ZW7-40.5 Outdoor Vacuum Circuit Breaker? Contact us today at ygvcb@hotmail.com and let us be your trusted partner in the electrical industry.
With Shaanxi Yuguang Electric Co., Ltd., you can expect nothing but the best in quality, reliability, and customer satisfaction. Choose us for all your circuit breaker needs!


