
Ⅱ Product use and conditions of use:
ZW8-40.5KV outdoor vacuum circuit breakers are used in three-phase power system of AC 50HZ for dividing and closing load current, overload current and short-circuit current.
The products can be divided into common type, anti-fouling type and plateau type according to the conditions of use.
Conformity standards: GB1984 "AC High Voltage Circuit Breaker" and IEC56 "AC High Voltage Circuit Breaker" standards, and ONJ.520.023JT (Outdoor High Voltage Vacuum Circuit Breaker Technical Conditions).
Ordinary type product conditions:
4.1 Surrounding air temperature, upper limit +40℃, lower limit -30℃ in general area, -40℃ in alpine area
4.2 Altitude: 2000 m
4.3 Partial pressure does not exceed 700Pa (equivalent to wind speed 34 m / S)
4.4 Seismic intensity, not more than 8 degrees
4.5 Air pollution level is Ⅲ

Note: Anti-fouling type is used in the environment of air pollution degree Ⅳ; plateau type is used in the environment of the altitude of 4000m or less.
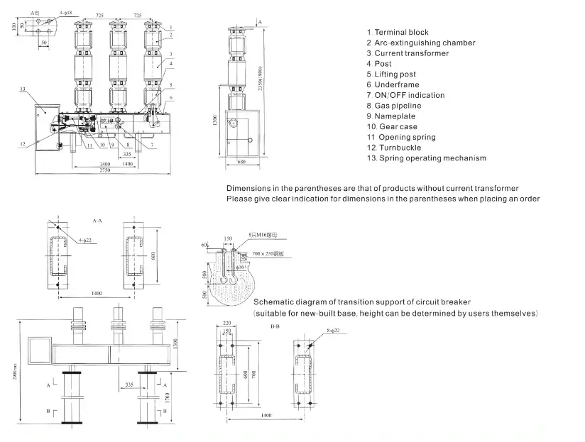
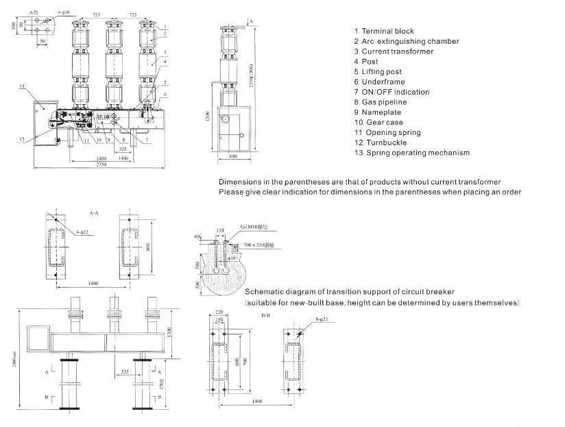
Ⅲ Product structure and working principle
The product is overall pillar type, three-phase common installed in a mechanism on the box, the dynamic end of the interrupter through the arm, insulated rod for the output shaft of the mechanism connected. The mechanism and the connecting rod connected with the circuit breaker in a waterproof box. Circuit breaker drive mechanism is composed of connecting rod and crutch arm, the dynamic end of the interrupter chamber through the crutch arm, insulated tie rod, connecting rod and the output shaft of the operating mechanism is connected. The rotation of the output shaft is driven to realize the dynamic contacts of the interrupter chamber, and the splitting and closing action.

Ⅳ Technical Parameters of ZW8-40.5 Outdoor Vacuum Circuit Breaker
The technical parameters of ZW8-40.5 Outdoor Vacuum Circuit Breaker are presented in the table below:

OEM/ODM Services:
At Shaanxi Yuguang Electric Co., Ltd., we understand the importance of customization. That's why we offer comprehensive OEM and ODM services to meet your specific requirements. Whether you need private labeling or custom product development, our experienced team is here to assist you every step of the way.
Certificates:
We take pride in our commitment to quality and safety. Our products are certified to meet the highest industry standards, including:
3C Certification
ISO 9001 Certification
21 Utility Model Patents and Design Patents

Why Choose Us:
State-of-the-art Manufacturing Equipment
Extensive Testing Facilities
Comprehensive Quality Assurance Processes
ISO 9001 Certified Quality Management System
One-year Warranty on All Products
Large Production Capacity
FAQ:
Q: What is the warranty period for your products? A: We offer a one-year warranty on all our products.
Q: Can you customize products according to our specifications? A: Yes, we provide OEM and ODM services to meet your specific requirements.
Q: Are your products compliant with international standards? A: Yes, our products meet all relevant international standards.
Q: What is the lead time for orders? A: The lead time depends on the quantity and customization requirements. Please contact us for more information.
Q: Do you provide technical support? A: Yes, we offer comprehensive technical support to our customers.
Packaging:
Wooden Box Packaging
Carton Packaging
Foam-filled Packaging
Waterproof and Moisture-proof Packaging
Customized Packaging
International Standard Packaging
Logistics:
Sea Freight
Air Freight
Land Transportation
Multimodal Transport
Express Delivery Services
Contact Us:
Ready to take your electrical projects to the next level? Contact us today at ygvcb@hotmail.com to discuss your requirements and explore partnership opportunities with Shaanxi Yuguang Electric Co., Ltd. Let's create a brighter future together.


